type=11
Amb l’aprovació de l’avantprojecte, ha començat el procés perquè la Garriga tingui un nou tanatori, fet a la mida del municipi.
En la sessió plenària del mes d’abril, es va aprovar l’avantprojecte del tanatori municipal de la Garriga, un nou equipament que s’ubicarà a l’espai on actualment es troba l’antic magatzem de la Unitat Operativa de Serveis de l’Ajuntament (la brigada municipal).
També es va aprovar iniciar l'expedient per a la concessió administrativa d'ús privatiu de la parcel·la del futur tanatori, per a la construcció i l'explotació del nou equipament.
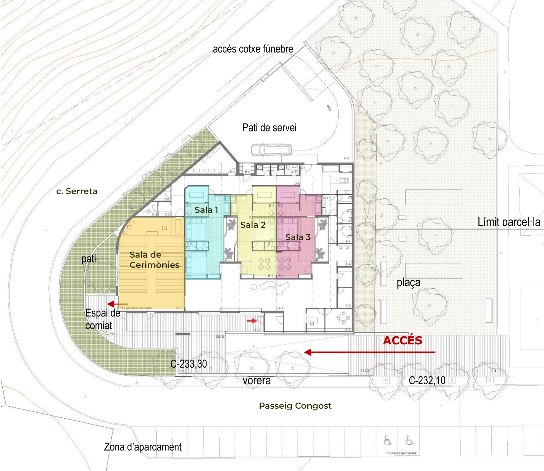
Comença així el camí perquè la Garriga pugui comptar amb un tanatori adequat a les dimensions i necessitats del municipi, que comptarà amb tres sales de vetlla, un vestíbul, un auditori amb capacitat per a 112 persones, una zona de preparació, vestidors i serveis, i una zona d’aparcament.
I és que l’avantprojecte de l’equipament s’ha redactat en base a un estudi previ realitzat, que ha analitzat tant la casuística de la Garriga, com les característiques dels tanatoris de municipis similars, amb més i amb menys habitants.

Un tanatori a la mida de la Garriga
L’empresa VSarquitectura, encarregada d’elaborar l’avantprojecte del tanatori, va realitzar l’esmentat estudi, per al qual es va tenir en compte la població actual de la Garriga (unes 17.000 persones) i que el Planejament Urbanístic no preveu un gran augment de població en els pròxims anys.
També es va contemplar la possibilitat que l’equipament doni servei a poblacions veïnes, de manera que s’ha considerat que podria servir per a una població de fins a 25.000 habitants.
Per calcular la mitjana d’ús dels tanatoris, l’estudi va relacionar el nombre de sales amb el nombre d’habitants de poblacions d’entre 15.000 i 30.000 persones. La mitjana resultant ha estat de 12.917 habitants per sala.
Així, amb un tanatori de tres sales, la mitjana d’ús seria de 5.676 habitant per sala, tenint en compte la població exclusivament garriguenca, o de 8.333 habitants per sala, considerant una població de 25.000 persones.
Aquestes xifres situen el municipi entre les poblacions més ben dotades en aquest sentit.
Més sales de vetlla i molt més espaioses
Les sales de vetlla del nou tanatori, amb zona d’estar, bany i espai més íntim per al túmul, comptaran amb 72,3 m2 de superfície cadascuna. Es preveu que comptin amb comoditats com armari, moble amb cafetera i nevera minibar, sofàs i taules baixes. I tindran uns patis de llum allargats que il·luminaran amb llum natural la sala.
A més, es preveu que dues de les sales es puguin connectar entre sí formant-ne una de molt gran per casos esporàdics amb dos decessos de la mateixa família o en previsió d’una gran assistència de visites.
Cal recordar que actualment, a la Garriga, només es compta amb dues sales de vetlla a l’Asil Hospital, d’unes dimensions molt reduïdes: 17 m2 per sala (l’espai per al fèretre fa uns 4,5 m2 i l’espai per a la família i les visites, uns 12,5 m2).

Una gran sala de cerimònies
Un dels espais a destacar en el futur tanatori serà l’auditori, un espai amb el qual no es compta a dia d’avui. Amb capacitat per a 140 persones (112 assegudes i unes 28 dretes), les seves dimensions el faran adequat per a la majoria de cerimònies. Es distingirà pel finestral amb vistes al pati lateral que permetrà il·luminar la sala i donar-li profunditat.


Nous espais
El nou tanatori també tindrà un vestíbul o sala comú on es disposarà de zona de vending, oficina d’atenció i espai per a preparació i exhibició, una zona de preparació amb una taula de treball i possibilitat de cambra mortuòria refrigerada, i vestidors i serveis.
A l’exterior, hi haurà un porxo, que serà el punt de trobada i zona d’espera, un espai de comiat on els assistents a la cerimònia poden donar el condol i acomiadar-se de la família, un pati de servei que permet carregar i descarregar els fèretres de forma privada i aparcar el cotxe fúnebre, i l’espai exterior restant, que comunicarà amb la via pública.


Cèntric i a peu pla
La ubicació del futur tanatori s’ha triat tenint en compte diversos factors: la situació cèntrica de la finca en relació al nucli urbà, les dimensions del terreny, la facilitat d’aparcament i l’entorn natural agradable.
A més, es tracta d’una parcel·la de titularitat municipal, cosa que facilita tot el procés.
Cal esmentar que, donada la proximitat del riu Congost, es va sol·licitar a l’Agència Catalana de l’Aigua (ACA) un informe tècnic. En quant a inundabilitat, es conclou que està permès situar aquesta tipologia d’edifici en aquesta parcel·la. Això sí, el projecte constructiu haurà d’incloure criteris de disseny per tal de reduir la vulnerabilitat de persones o bens.
Sistema de concessió
La fórmula de contractació és la concessió de domini públic, per la qual se seleccionarà una empresa que construeixi l’equipament i el gestioni durant els 50 anys de concessió. Després d’aquest temps, l’edifici passa a ser de propietat municipal.
Si s’ha optat per aquest sistema és perquè el cost de la construcció (2.195.809 + IVA) i gestió d’un tanatori és difícilment assumible per l’Ajuntament. A més, amb aquesta fórmula, adoptada per la majoria de municipis (Sant Celoni, Mollet, Granollers, Montornès...), la Garriga podrà comptar amb aquest nou servei en un termini aproximat de dos anys.